TROVA la casa dei tuoi sogni

APRI LA ricerca

Località :

Prezzo: su richiesta

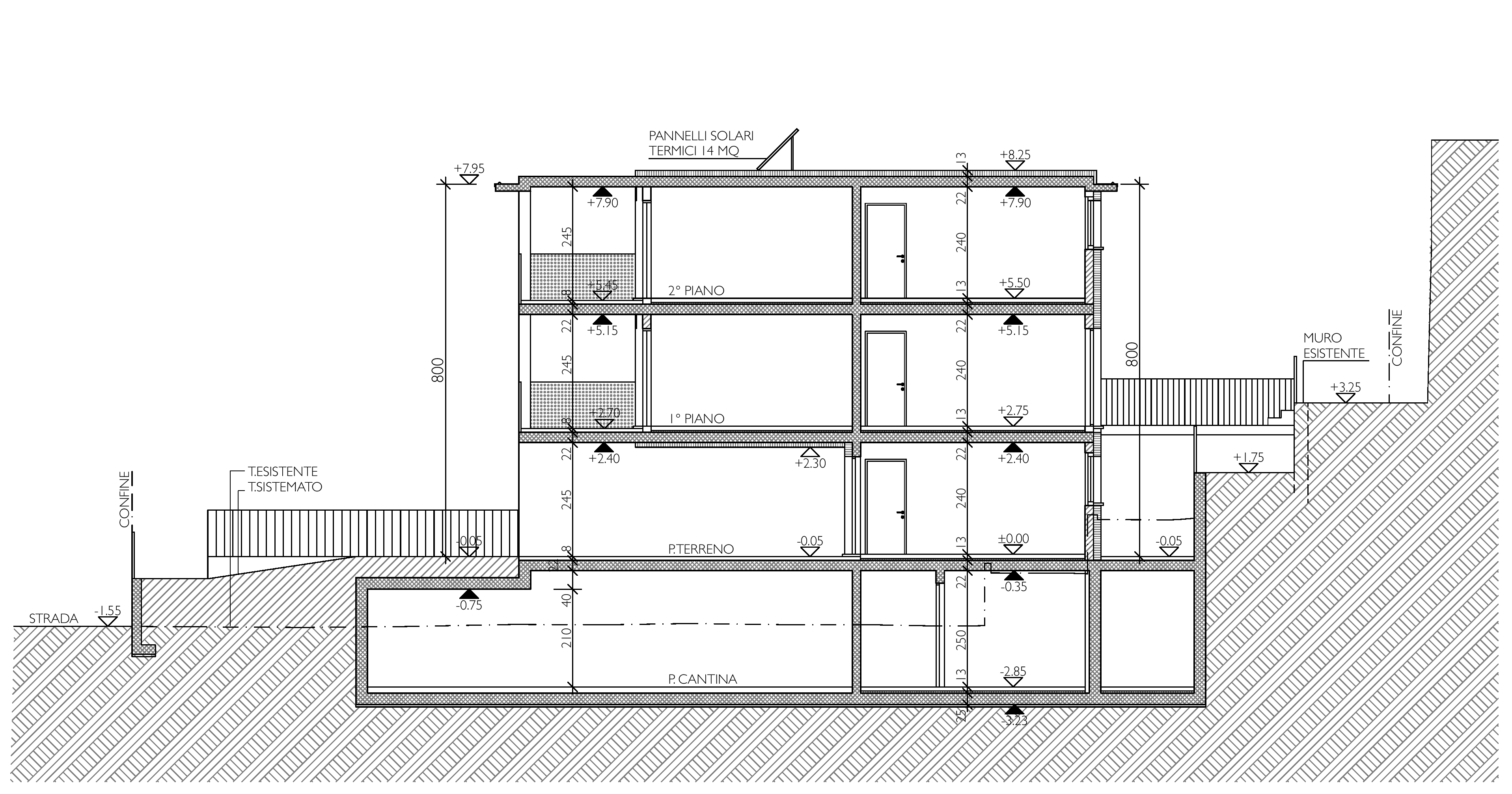
Dettagli immobile

Descrizione Immobile

* campi obligatori.
Please insert valid email address.
Richiesta informazioni Codice oggetto:
INVIA SCHEDA A UN AMICO