TROVA la casa dei tuoi sogni

APRI LA ricerca

Terreno edificabile in zona Residenziale Estensiva

Località : Giubiasco

Venditaterreni

Località : Giubiasco

Prezzo:CHF 540'000.00

Dettagli immobile

Superficie : 542 m2

Terreno : 1085 m2

Trasporti : 500 m

Negozi : 500 m

Indice occupazione percentuale40

Indice sfruttamento percentuale50

Disponibilità : Subito

Descrizione Immobile

Palasio è una zona molto tranquilla, nelle immediate vicinanze si trovano tutti i principali servizi quali scuole, studi medici, negozi, municipio e ritrovi pubblici.

La piazza di Giubiasco è raggiungibile a piedi in soli 5 minuti.

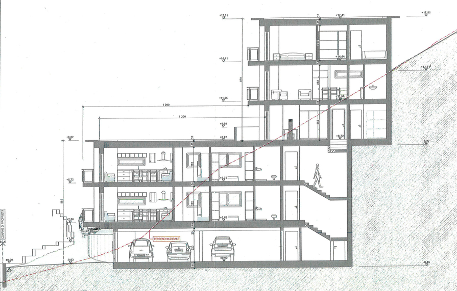
Il fondo edificabile è ideale per l’edificazione di una piccola palazzina da 5 livelli fuori terra.

Ben si appresta a ricevere anche delle villette unifamiliari oppure importante villa.

La richiesta abitativa a Giubiasco, Comune di Bellinzona, è in crescente rialzo, sia per quanto riguarda l’acquisto che la locazione.

Uno dei fattori commerciali importanti è la possibilità di utilizzo delle nuove abitazioni, oltre che come residenza primaria, anche quale residenza secondaria (vedi brochure pagina 4 inventario delle abitazioni).

I piani del progetto mostrati quale esempio (a partire da pagina 5) vogliono dare un’idea di fattibilità edificatoria e non sono vincolanti per l’acquisizione del fondo.

* campi obligatori.
Please insert valid email address.
Richiesta informazioni Codice oggetto: 20824
INVIA SCHEDA A UN AMICO