TROVA la casa dei tuoi sogni

APRI LA ricerca

Elegante duplex in zona comoda e tranquilla

Località : Lumino

Venditaappartamenti

Località : Lumino

Prezzo:CHF 565'000.00

Dettagli immobile

Numero locali : 3.5

Superficie : 97 m2

Terrazzo/e : 18 m2

Piano appartamento: 1°/2° Piano

Numero piani : 4

Trasporti : 200 m

Negozi : 500 m

Disponibilità : Subito

Descrizione Immobile

Zona tranquilla e ben soleggiata, nelle vicinanze dei principali servizi: Centri commerciali, stazione ferroviaria e svincolo autostradale, ed a soli 6 km dal centro di Bellinzona.

L’edificio è stato realizzato con particolare attenzione all'ecologia ed al consumo energetico, si sviluppa su quattro livelli che ospitano un totale di soli cinque appartamenti.

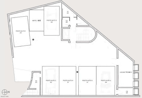
Al piano interrato si trova l’autorimessa con sei posti auto coperti, spazio coperto per moto e bici, cantine e i locali tecnici, collegati con gli altri piani da scale e comodo ascensore.

Lo spazio esterno è valorizzato dal simpatico patio e dalle belle terrazze.

La disposizione degli appartamenti si sviluppa come segue: Al piano terra si trova un ampio appartamento da 4 ½ locali con giardino adiacente.

Al primo piano un appartamento da 3 ½ locali e un duplex da 3 ½ locali, con scala interna di collegamento tra il primo e il secondo livello.

Al secondo e terzo piano appartamenti da 3 ½ locali, rispettivamente con due balconi e con terrazzo.

Il riscaldamento e la produzione di acqua calda sanitaria avvengono tramite termo-pompa, con distribuzione di calore mediante serpentine a bassa temperatura.

Isolazione termica quale cappotto esterno sulle facciate. Predisposizione per l’aria condizionata e per la colonna di ricarica della auto elettriche.

Posti auto in autorimessa compresi nel prezzo.

Gli appartamenti sono affittati e vengono venduti con il contratto di locazione in essere.

* campi obligatori.
Please insert valid email address.
Richiesta informazioni Codice oggetto: 20827
INVIA SCHEDA A UN AMICO