Nuovo spazioso appartamento con terrazza coperta al piano attico
Località : Monte Carasso
Venditaappartamenti
Località : Monte Carasso
Prezzo:CHF 920'000.00
Dettagli immobile
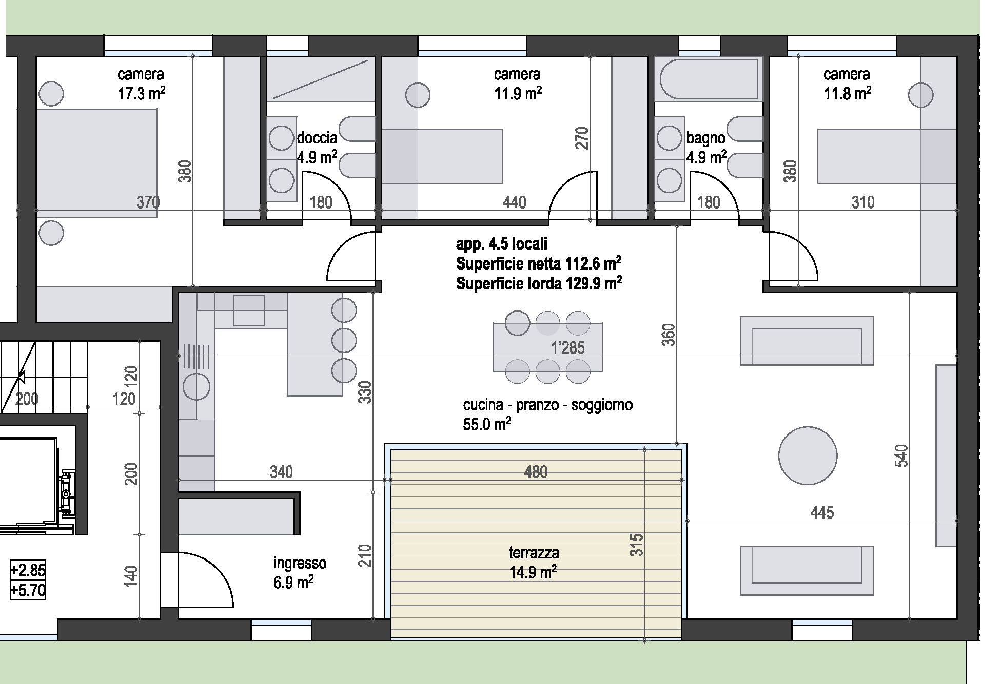
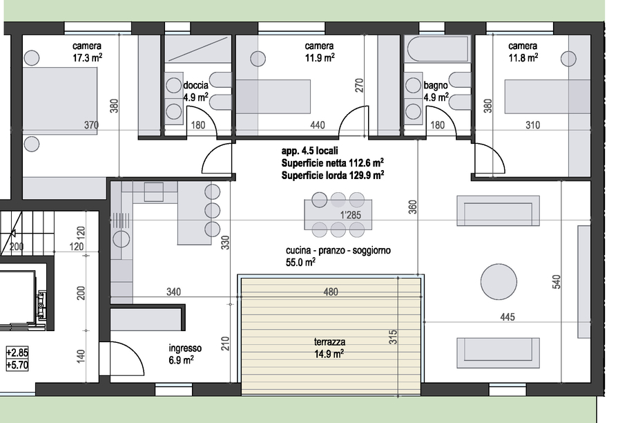
Numero locali : 4.5
Superficie : 130 m2
Terrazzo/e : 15 m2
Piano appartamento: 2° piano
Numero appartamento : 3
indirizzo :Via El Sgérbi
Disponibilità : Concordare
Descrizione Immobile
La Residenza 1078 sorgerà in via El Sgérbi, zona molto ben servita e nelle immediate vicinanze dei principali servizi, la Casa comunale dista soltanto 50 metri dalla residenza.
La zona è molto richiesta per la posizione centrale, l’accesso avviene da una piccola strada di quartiere con transito solo per i residenti.
La residenza è composta da soli 4 appartamenti di 4 ½ locali distribuiti due per piano, tra il primo ed il secondo livello, questa caratteristica permette di avere le tre facciate libere ed avere solamente una parete (doppia) in concomitanza con l’appartamento vicino.
Al livello inferiore, piano terreno, si trovano i posti auto ed i giardini privati.
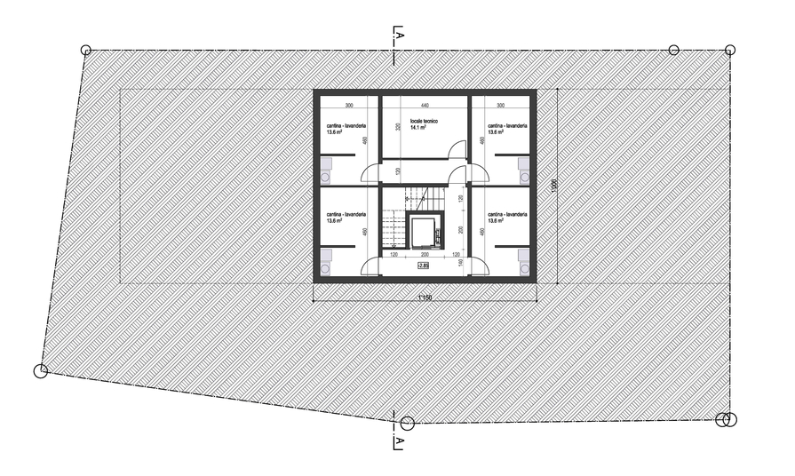
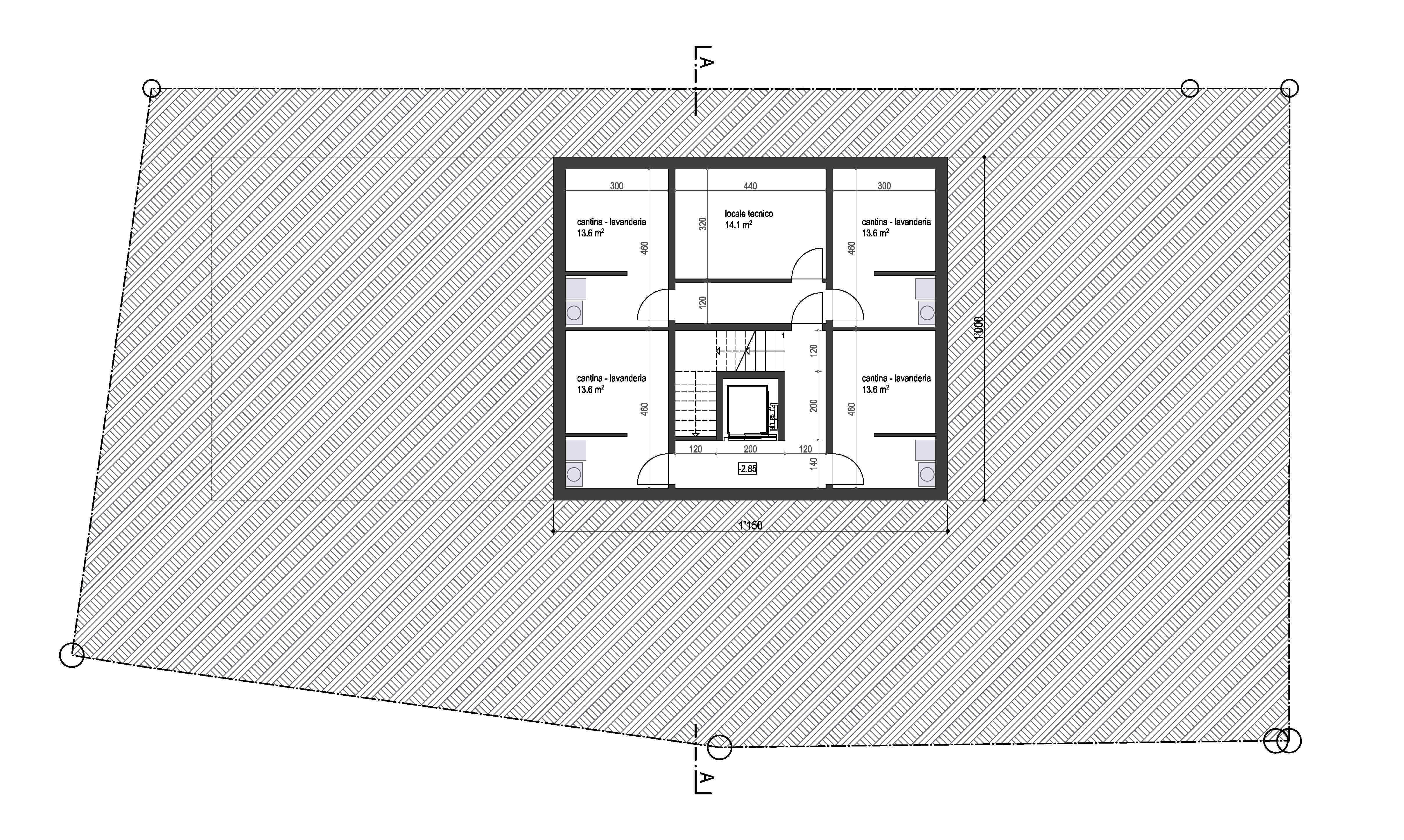
Al piano interrato, comodamente raggiungibile con ascensore, si trovano le cantine in muratura con lavanderia privata ed il locale tecnico.
L’edificio verrà realizzato in stile costruttivo tradizionale, con elementi in beton ed in muratura e con isolazione termica delle facciate.
Particolare attenzione è stata data agli aspetti energetici: Impianto a regolazione individuale per ogni locale, termopompa aria/acqua e distribuzione calore con serpentine a bassa temperatura posate a pavimento e pannelli solari fotovoltaici posati sul tetto.
Gli appartamenti offrono spazi architettonici valorizzati sia dalla tipologia di distribuzione che dalla scelta personale delle rifiniture.
Gli spazi esterni sono garantiti sia dai giardini al piano terreno che dalle terrazze coperte che conferiscono un elevato senso di privacy.
2 posti auto coperti sono compresi nel prezzo.



















